中古一戸建て 北佐久郡御代田町大字御代田字七口
所在地
北佐久郡御代田町大字御代田字七口
2,220万円
27.05坪
3LDK
駐車場2台可 リフォーム済 各居室に広い収納スペース有 3LDK平屋
Mary's bar & espressoまで徒歩約12分(約900m)
御影用水温水路まで徒歩約20分(約1.6㎞)
ツルヤ御代田店まで車約7分(約2.7㎞)
物件概要
- 交通
-
しなの鉄道 御代田駅 まで 徒歩27分
北陸新幹線 軽井沢駅まで車約30分(約11.9㎞)
- 接道状況
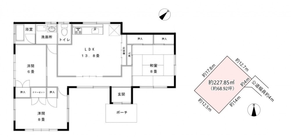
- 南東側 公道約4.0m 間口約4.0m
- 土地面積
- 公簿 227.85㎡ (68.92坪)
- 建物面積
- 89.43㎡ (27.05坪)
- 築年数
-
1992年
(平成4)
3月
築34年 - 建ぺい率
- 50%
- 容積率
- 80%
- 土地権利
- 所有権
- 構造および階数
- 木造 地上1階建
- 小学校区
- 御代田南 ( 2000m )
- 中学校区
- 御代田 ( 1700m )
- 私道負担
- なし
- 地目
- 宅地
- 現況
- 空
- 引渡時期
- 相談
- 駐車場
- 普通2台
- 上水道
- 公共
- 下水道
- 公共
- ガス
- プロパン個別
- 都市計画
- 非線引区域
- 用途地域
- 1種低層
- 設備・条件
- システムキッチン、洗浄便座
- 備考
-
下水道受益者負担金要(650円/㎡)
- 取引態様
- 仲介


まずは、「ホームページを見て
相談に
行きたいのですが…」
とお電話ください‼️