新築一戸建て 北佐久郡御代田町大字御代田
所在地
北佐久郡御代田町大字御代田
5,200万円
24.04坪
木々に囲まれた気持ちのいい分譲地
高気密高断熱の新築平屋建て(ロフト付き)
・雪窓公園まで徒歩約8分(約650m)
・カフェ&インテリアLまで徒歩約8分(約550m)
・西友御代田店まで車約4分(約1.5㎞)
物件概要
- 交通
-
しなの鉄道 御代田駅 まで 徒歩31分
佐久平駅から車約14分
- 接道状況
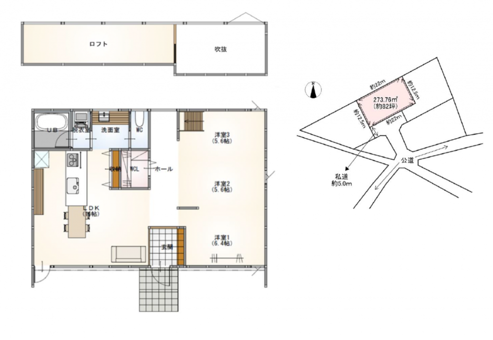
- 南側 私道5.0m 間口約15.0m
- 土地面積
- 公簿 273.76㎡ (82.81坪)
- 建物面積
- 79.49㎡ (24.04坪)
- 築年数
- 2026年 (令和8) 6月 完成予定
- 建ぺい率
- 60%
- 容積率
- 200%
- 土地権利
- 所有権
- 構造および階数
- 木造 地上1階建
- 小学校区
- 御代田南 ( 800m )
- 中学校区
- 御代田 ( 1600m )
- 私道負担
- 地目
- 宅地
- 現況
- 未着工
- 引渡時期
- 予定 2026年7月
- 駐車場
- 上水道
- 公共
- 下水道
- 公共
- ガス
- プロパン個別
- 都市計画
- 非線引区域
- 用途地域
- 定無
- 建築確認番号
- 第25NJU-10-00401号
- 設備・条件
- 備考
-
・2025年10月末着工予定
・埋蔵文化財包蔵地内
・最大3部屋まで間仕切ることができるので、ライフスタイルに合わせて空間の広さを柔軟に選択できます
・外構工事も含まれています - 取引態様
- 仲介


まずは、「ホームページを見て
相談に
行きたいのですが…」
とお電話ください‼️